





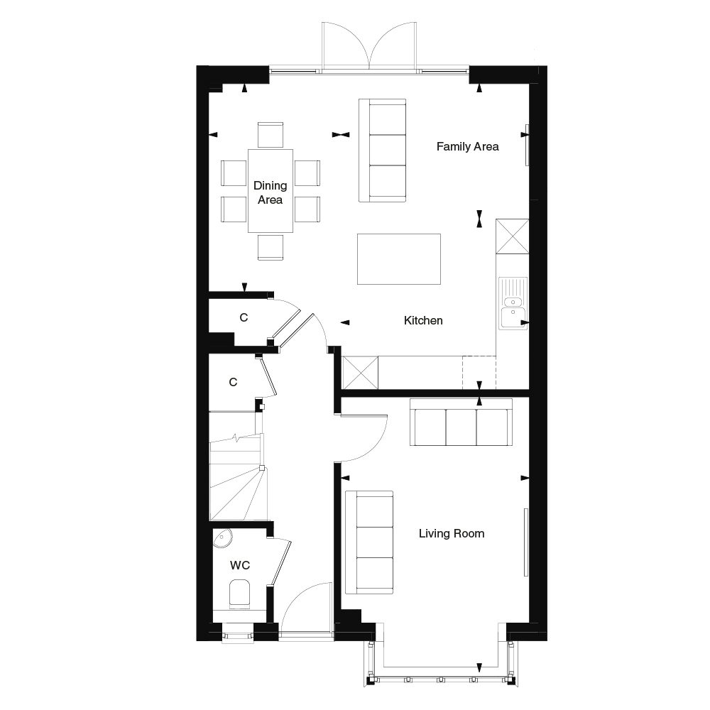
The Wilmington, is a stunning 4-bedroom semi-detached home, designed for modern family living with an emphasis on light, space, and functionality.
At its heart is the impressive open-plan kitchen/dining/family room, creating a bright and versatile area for cooking, dining, and entertaining. Doors leading to the garden enhance the flow of natural light, seamlessly connecting indoor and outdoor living.
The separate living room, featuring a charming bay window, provides a spacious yet cozy retreat, perfect for relaxation or social gatherings.
Upstairs, the main bedroom spans the top floor, offering a private sanctuary with fitted wardrobes and an en-suite bathroom. Three additional bedrooms provide flexible spaces for family, guests, or home working, ensuring versatility for every stage of life.
Garage, driveway and EV charging point.

I'm here to help you find not just a house - but a place you’ll be proud to call home.
Whether you're taking your first step on the property ladder or searching for your forever home, I’ll guide you through every step.
Thoughtfully designed across three floors, The Wilmington, combines contemporary design with an emphasis on light, space, and functionality.
A large open-plan kitchen, dining, and family room with doors opening directly onto the garden.
A large separate living room features a charming bay window for peaceful retreats.
Upstairs, the main bedroom spans the top floor, offering a private sanctuary with fitted wardrobes and an en-suite bathroom.

The Linchmere - Plot 47
£530,000 - including up to £10,000 towards Stamp Duty
The Linchmere combines contemporary design and sustainability, making it a standout choice for modern living.
The modern kitchen/dining area, with double doors opening onto the south facing garden, creates a bright and inviting space for family meals or entertaining. The separate living room, with its elegant bay window, provides a peaceful retreat filled with natural light.
Upstairs, the main bedroom features a stylish en-suite and built-in wardrobe, offering both comfort and practicality. Two additional bedrooms and a family bathroom complete the layout.
Explore all the homes available for this house type, thoughtfully designed to suit a variety of lifestyles. Speak to our sales team for more information about specific plots and future phases.
*Terms and conditions apply to incentives. Please speak to our sales team for more information.







The kitchen at The Wilmington blends style with thoughtful utility. It features soft-close doors and drawers, a laminate worktop and upstand in both the kitchen and utility area, and a stainless steel sink with a Vado mixer tap. AEG appliances include a stainless steel double oven, induction hob with integrated extractor, and built-in dishwasher.
For added efficiency, it also includes a 70/30 split fridge freezer and space for a washer and dryer in the utility room, supporting a tidy and functional layout.

The bathroom at The Wilmington is finished with sleek white sanitaryware and chrome Vado accessories for a crisp, modern look. It includes a floor-standing WC, a steel enamel bath with an over-bath shower screen, and a separate shower in the en-suite.
A wall-mounted mixer tap by Vado adds a stylish touch, complemented by chrome towel warmers and ceramic tiling in selected areas for a polished, practical finish

This Wilmington is equipped with sustainable, future-ready features including an external air source heat pump, underfloor heating on the ground floor, and radiator heating upstairs. WiFi heating controls and LED downlights in key rooms provide energy-efficient comfort, with pendant lights in the remaining spaces.
Tech and utility features include USB charging points, stainless steel switches in the kitchen, a grid switch for appliances, and prewiring for battery storage. Media points are wired throughout, alongside roof-mounted solar panels and an electric car charging point to support modern, eco-conscious living.

The Wilmington features Amtico vinyl flooring in high-traffic areas and soft Cormar carpet elsewhere, with white painted doors and staircase details like redwood newels and oak caps. Consistent paint finishes across walls and joinery complete the clean, modern look.
Outside, landscaped gardens include turf, paving, sliding doors to living spaces, and an external tap. Eco-friendly features such as hedgehog access points and houses in shared areas support local biodiversity.

Our homes provide peace of mind as standard, with mains-fed smoke, heat, and carbon monoxide detectors with battery backup for added safety.
A comprehensive 10-year NHBC Buildmark Warranty includes two years of defect and emergency out-of-hours cover.
Use our mortgage calculator to see what you’d need to borrow and how much your monthly repayments might be.

Download our brochure to explore the elegant design, modern comforts, and thoughtful details that make these homes exceptional.








